Карамышевская набережная, 2А

Квартира в ЖК «Утёсов»
с живописным видом на Карамышевскую набережную
для успешного хирурга
Реализация дизайн-проекта – изготовление дверей, мебели,
стеклянных перегородок и мягкой мебели.

Один из наших первых проектов в сотрудничестве с архитектурным бюро simplearchitects.ru.
Проект квартиры 93 м² для супружеской пары успешных врачей и бизнесменов в области медицины.

Реализация дизайн-проекта – изготовление дверей, мебели, стеклянных перегородок и мягкой мебели.

Один из наших первых проектов в сотрудничестве с архитектурным бюро simplearchitects.ru.
Проект квартиры 93 м² для супружеской пары успешных врачей и бизнесменов в области медицины.

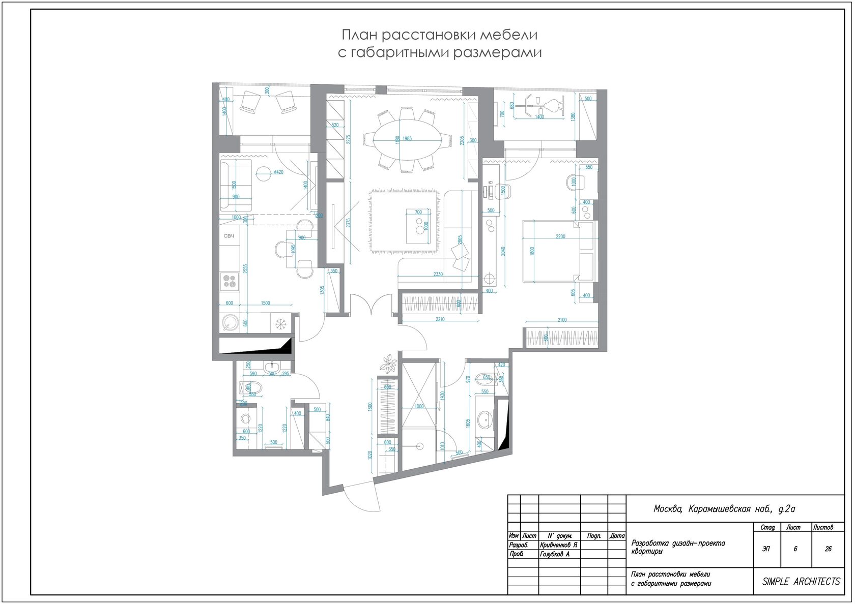
План расстановки мебели
Элементы отделки и мебельные изделия выполнены в неоклассическом стиле, с нотками минимализма.
Наша задача была реализовать мебель современной, интегрированной и естественной, с максимальной функциональностью. С заказчиками обсудили все детали проекта в течении 2-х суток, с краткими перерывами
на сон и приступили к работе.

Сложность данного объекта была в том, что мебель устанавливалась параллельно
в середине отделочных работ.

Элементы отделки и мебельные изделия выполнены в неоклассическом стиле, с нотками минимализма.
Наша задача была реализовать мебель современной, интегрированной и естественной, с максимальной функциональностью. С заказчиками обсудили все детали проекта в течении 2-х суток, с краткими перерывами на сон и приступили к работе.

Сложность данного объекта была в том, что мебель устанавливалась параллельно в середине отделочных работ.

Конец сентября 2019 г.
Начало работ
30.12.2019 г.
Окончание работ
38
Изделий, включая межкомнатные двери, мягкие панели, а также жаропрочное закалённое стекло в сауну
Конец сентября 2019 г.
Начало работ
30.12.2019 г.
Окончание работ
38
Изделий, включая межкомнатные двери, мягкие панели, а также жаропрочное закалённое стекло в сауну
Кухня и зона для кофе
Кухня и зона для кофе
Кухня, бар и дополнительные элементы выполнены из МДФ окрашенной RAL 9016 (трансп. белый высокий глянец), а отдельные фасады и цоколь - в RAL 6005 (зелёный мох – высокий глянец). Зонирование сделано с помощью открытого стеллажа с двусторонней эмалью. Столешница и фартук из кварцевого агломерата Gold Arabescato. Ящики, петли с доводчиками Blum. В барном шкафу дополнительно использовано стекло AGC Planibel Green.

Кухня, бар и дополнительные элементы выполнены из МДФ окрашенной RAL 9016 (трансп. белый высокий глянец), а отдельные фасады и цоколь - в RAL 6005 (зелёный мох – высокий глянец). Зонирование сделано с помощью открытого стеллажа с двусторонней эмалью. Столешница и фартук из кварцевого агломерата Gold Arabescato. Ящики, петли с доводчиками Blum. В барном шкафу дополнительно использовано стекло AGC Planibel Green.

Дизайн кухни
Дизайн бара

Прихожая

Прихожая

Корпус и фасады изготовлены из шпона ясеня (эмалированный матовый RAL 9016 - слева или матовый лакированный - справа). Фурнитура Blum TIP-ON. Спинка и сиденье в открытой части – микровелюр.
Зеркало во всю стену добавляет объёма и света.

Корпус и фасады изготовлены из шпона ясеня (эмалированный матовый RAL 9016 - слева или матовый лакированный - справа). Фурнитура Blum TIP-ON. Спинка и сиденье в открытой части – микровелюр.
Зеркало во всю стену добавляет объёма и света.

Спальня

Спальня

Здесь основной акцент сделан зону кровати. Изголовье делали во всю стену – высота более 3100 мм, для чего были применена скрытая модульная система креплений, что визуально создаёт эффект единого полотна. Материал – темно-кофейный микровелюр с Crush эффектом. Такой же материал мы добавили в двери шкафа, чтобы соблюсти единообразие интерьера. Тумбы, консоли и комод выполнены из МДФ эмали RAL 9003 и матовый лакированный шпон дуба). Фурнитура Blum TIP-ON.

Здесь основной акцент сделан зону кровати. Изголовье делали во всю стену – высота более 3100 мм, для чего были применена скрытая модульная система креплений, что визуально создаёт эффект единого полотна. Материал – темно-кофейный микровелюр с Crush эффектом. Такой же материал мы добавили в двери шкафа, чтобы соблюсти единообразие интерьера. Тумбы, консоли и комод выполнены из МДФ эмали RAL 9003 и матовый лакированный шпон дуба). Фурнитура Blum TIP-ON.

Мастер-санузел

Мастер-санузел

Просторная и светлая центральная зона с интегрированными шкафами из белой матовой эмали и тёмного шпона Oak Silver. Акценты в виде тумбы в ТВ зоне, с ярким, переливающимся рисунком шпона Оливы, перекликаются с однотонными мягкими стульями и декоративными подушками на обширном диване.
В правом шкафу предусмотрен решётчатый фасад для скрытого кондиционера.
Система открывания дверей и ящиков Blum TIP-ON.

Просторная и светлая центральная зона с интегрированными шкафами из белой матовой эмали и тёмного шпона Oak Silver. Акценты в виде тумбы в ТВ зоне, с ярким, переливающимся рисунком шпона Оливы, перекликаются с однотонными мягкими стульями и декоративными подушками на обширном диване. В правом шкафу предусмотрен решётчатый фасад для скрытого кондиционера. Система открывания дверей и ящиков Blum TIP-ON.

Гостиная

Гостиная

Просторная и светлая центральная зона с интегрированными шкафами из белой матовой эмали и тёмного шпона Oak Silver. Акценты в виде тумбы в ТВ зоне, с ярким, переливающимся рисунком шпона Оливы, перекликаются с однотонными мягкими стульями и декоративными подушками на обширном диване.
В правом шкафу предусмотрен решётчатый фасад для скрытого кондиционера.
Система открывания дверей и ящиков Blum TIP-ON

Просторная и светлая центральная зона с интегрированными шкафами из белой матовой эмали и тёмного шпона Oak Silver. Акценты в виде тумбы в ТВ зоне, с ярким, переливающимся рисунком шпона Оливы, перекликаются с однотонными мягкими стульями и декоративными подушками на обширном диване. В правом шкафу предусмотрен решётчатый фасад для скрытого кондиционера. Система открывания дверей и ящиков Blum TIP-ON

Хочу такую же мебель!
Свяжитесь с нами или оставьте данные, чтобы мы перезвонили вам в ближайшее время
+7 963 782-34-92
info@garitov.ru
Хочу такую же мебель!
Свяжитесь с нами или оставьте данные, чтобы мы перезвонили вам в ближайшее время
+7 495 120-14-80
info@garitov.ru